История объявлений о долгосрочной аренде жилья по адресу Санкт-Петербург, улица Композиторов, 18
Найдено 11 объявлений.
35 000 р.
Сегодня в 13:02
Санкт-Петербург, Выборгский р-н, ул. Композиторов, 18
Сдам квартиру студию на длительный срок - более 6 месяцев. Без комиссии. Дом комфорт класса. Собственник. Договор аренды. Просьба посредникам не беспокоить.
Дополнительная информация:
санузел - раздельный, мебель - кухня, хранение одежды, спальные места, холодильник, стиральная машина.
Дополнительная информация:
санузел - раздельный, мебель - кухня, хранение одежды, спальные места, холодильник, стиральная машина.
25 000 р.
22.02.23 в 16:13
Санкт-Петербург, Выборгский р-н, улица Композиторов, 18, Шувалово-Озерки
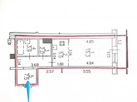
Уютная, тёплая квартира-студия площадью 35 м. Жилая площадь - 15,5 м., кухня - 5,5 м., совмещённый санузел - 3,9 м., застеклённая лоджия - 3,2 м. В вашем распоряжении холодильник, микроволновка, стиральная машина, электрическая плита с вытяжкой, телевизор. В прихожей установлен большой шкаф. В ванной тёплый пол. Из окон открывается вид на Нижнее Суздальское озеро.
В подъезде функционируют три лифта. Въезд на территорию дома закрыт шлагбаумом, на территории есть бесплатные места для парковки, также имеется подземный паркинг.
Прямо перед домом расположен гипермаркет Окей. В самом доме есть салон красоты, фитнес студия и детский клуб. В пешей 5-минутной доступности есть детские сады и школы.
До Ст. метро "Проспект Просвещения" - 10 минут пешком.
Залог в размере оплаты одного месяца проживания вносится сразу вместе с оплатой первого месяца проживания.
В подъезде функционируют три лифта. Въезд на территорию дома закрыт шлагбаумом, на территории есть бесплатные места для парковки, также имеется подземный паркинг.
Прямо перед домом расположен гипермаркет Окей. В самом доме есть салон красоты, фитнес студия и детский клуб. В пешей 5-минутной доступности есть детские сады и школы.
До Ст. метро "Проспект Просвещения" - 10 минут пешком.
Залог в размере оплаты одного месяца проживания вносится сразу вместе с оплатой первого месяца проживания.
Необходим залог, 25000 р.
30 000 р.
31.08.22 в 10:03
Санкт-Петербург, Выборгский р-н, улица Композиторов, 18, Шувалово-Озерки
Сдаётся впервые просторная видовая квартира-студия, расположенная в ЖК Pragma-House. Из окна потрясающий вид на Суздальские озера, особенно прекрасны закаты. Просторная ванная и раздельный санузел с дизайнерским ремонтом. Квартира оснащена всем необходимым: холодильник, телевизор, стиральная машина, посудомоечная машина, индукционная плита, духовой шкаф и микроволновая печь. Достаточное количество мест для хранения ваших вещей: шкаф, комоды, стеллаж, гардеробная в прихожей. Для сна и отдыха- двуспальный диван и кресло-кровать. Охраняемая территория. Парковка во дворе со шлагбаумом. Развитая инфраструктура, в шаговой доступности магазины: Окей, Магнит и несколько кофеен. До метро "Проспект Просвещения" пешком 12 минут.
Только для граждан РФ
Залог 100%, может быть разбит на две части.
Без агентской комиссии.
Коммунальные платежи оплачиваются отдельно.
Только для некурящих!
Агентов просьба не беспокоить!
Необходим залог.
Только для граждан РФ
Залог 100%, может быть разбит на две части.
Без агентской комиссии.
Коммунальные платежи оплачиваются отдельно.
Только для некурящих!
Агентов просьба не беспокоить!
Необходим залог.
23 000 р.
03.06.22 в 14:11
Санкт-Петербург, Выборгский р-н, улица Композиторов, 18, Шувалово-Озерки
Сдам квартира-студия 36 м. ЖК Pragma-House. Свежий ремонт. Современная мебель и техника. До метро 15 минут пешком. Рядом Окей.
Необходим залог.
Необходим залог.
22 000 р.
13.05.22 в 14:53
Санкт-Петербург, Выборгский р-н, улица Композиторов, 18, Шувалово-Озерки
Сдам светлую теплую квартиру-студию в ЖК "Прагма-Хаус". Зоны удобно зонированы, светлая гамма цветов создает дополнительное пространство. Встроенная кухня, раскладной ортопедический диван, мебельная стенка, санузел большой раздельный в кафеле. Вместительные шкафы-купе! Лоджия застекленная, с панорамным видом на город! В наличии большой ЖК-телевизор, пылесос, СВЧ-печь. Вся мебель и техника новые! Закрытая территория жилого комплекса, въезд под шлагбаум, охрана и видеонаблюдение придомовой территории и внутри дома. Подземный паркинг, парковка под навесами на придомовой территории, одна минута пешком до гипермаркета Окей. Очень хороший собственник! Звоните!
Необходим залог.
Необходим залог.
65 000 р.
26.04.22 в 10:34
Санкт-Петербург, Выборгский р-н, улица Композиторов, 18, Шувалово-Озерки
Сдаётся впервые от собственника в доме бизнес класса Прагма Хаус!
В квартире современный дизайнерский ремонт, итальянская мебель и куча электронники !!! Есть наземный и подземный паркинг! 3 лифта, закрытая территория, Охрана!
Три кондиционера в двух комнатах и кухне с функцией ионизации и очистки воздуха! Тёплые полы везде! Датчики света! Электро- диван, электро- Кровать с функцией массажа! Большой ТВ Самсунг с изогнутым дисплеем! КАМИН с функцией обогрева!!! Джакузи, гидромассаж и турецкий хаммам!!! Так же есть посудомоечная машина, чайник, микроволновка, духовка и все необходимое для комфортной жизни!!!
Необходим залог.
В квартире современный дизайнерский ремонт, итальянская мебель и куча электронники !!! Есть наземный и подземный паркинг! 3 лифта, закрытая территория, Охрана!
Три кондиционера в двух комнатах и кухне с функцией ионизации и очистки воздуха! Тёплые полы везде! Датчики света! Электро- диван, электро- Кровать с функцией массажа! Большой ТВ Самсунг с изогнутым дисплеем! КАМИН с функцией обогрева!!! Джакузи, гидромассаж и турецкий хаммам!!! Так же есть посудомоечная машина, чайник, микроволновка, духовка и все необходимое для комфортной жизни!!!
Необходим залог.
52 000 р.
23.04.22 в 07:08
Санкт-Петербург, Выборгский р-н, улица Композиторов, 18, Шувалово-Озерки
Сдаётся собственником, без комиссии! Квартира свободна! двухкомнатная и есть возможность аренды подземного паркинга !!! 78 кВ м, с балконом 88 кВ м, на фото можно увидеть большой балкон!
В квартире есть все: Мебель, посуда, техника, гладильная и сушильная доска, телевизоры, даже в ванной комнате, посудомоечная Машина, две гардеробные,пылесос, постельное белье, огромная лоджия, а также сдаётся место в подземном паркинге, для небольшой машины, отдельно за 5000 с коммуналкой , все охраняемое, видеодомофон, на этаже все закрыто под ещё один домофон, на фото все видно! Залог можно разбить на два месяца!Коммунальные платежи летом около 5000 ₽ зимой около 7000! Сдам предпочтительно славянам, не курящим и без животных! Платёжеспособным! Вся инфраструктура в шаговой доступности!!! Агентов просьба не беспокоить!!
Необходим залог.
В квартире есть все: Мебель, посуда, техника, гладильная и сушильная доска, телевизоры, даже в ванной комнате, посудомоечная Машина, две гардеробные,пылесос, постельное белье, огромная лоджия, а также сдаётся место в подземном паркинге, для небольшой машины, отдельно за 5000 с коммуналкой , все охраняемое, видеодомофон, на этаже все закрыто под ещё один домофон, на фото все видно! Залог можно разбить на два месяца!Коммунальные платежи летом около 5000 ₽ зимой около 7000! Сдам предпочтительно славянам, не курящим и без животных! Платёжеспособным! Вся инфраструктура в шаговой доступности!!! Агентов просьба не беспокоить!!
Необходим залог.
22 000 р.
12.04.22 в 20:39
Санкт-Петербург, Выборгский р-н, улица Композиторов, 18, Шувалово-Озерки
Сдаётся на длительный срок квартира-студия от собственника в монолитном доме, большая, светлая, окна выходят на улицу Композиторов. Рядом метро Проспект Просвещения, Суздальские озёра. Есть возможность парковки автомобиля в закрытом дворе. Квартира меблированная: кухня с встроенной техникой(варочная поверхность, духовой шкаф, вытяжка), двуспальная кровать, два вместительных шкафа-купе, обеденный стол и стулья. Есть стиральная машина, холодильник, микроволновка, телевизор. Санузел совмещённый, большой. Все коммунальные платежи, включая отопление, по счётчикам.
Необходим залог.
Необходим залог.
60 000 р.
01.04.22 в 14:52
Санкт-Петербург, Выборгский р-н, ул. Композиторов, 18
Сдаётся собственником, без комиссии! Квартира свободна! двухкомнатная и плюс подземный паркинг!!! 78 кВ м, с балконом 88 кВ м, на фото можно увидеть большой балкон!
В квартире есть все: Мебель, посуда, техника, гладильная и сушильная доска, телевизоры, даже в ванной комнате, посудомоечная Машина, две гардеробные,пылесос, постельное белье, огромная лоджия, а также сдаётся вместе с местом в подземном паркинге, для небольшой машины, все охраняемое, видеодомофон, на этаже все закрыто под ещё один домофон, на фото все видно! Залог можно разбить на два месяца!Коммунальные платежи летом около 5000 с паркингом, зимой около 7000! Сдам предпочтительно славянам, не курящим и без животных! Платёжеспособным! Вся инфраструктура в шаговой доступности!!! Агентов просьба не беспокоить!!
Дополнительная информация:
Стиральная машина, Холодильник, Телевизор, Кондиционер, Посудомоечная машина, Интернет. Можно с детьми, Без животных. Евроремонт.
Необходим залог.
В квартире есть все: Мебель, посуда, техника, гладильная и сушильная доска, телевизоры, даже в ванной комнате, посудомоечная Машина, две гардеробные,пылесос, постельное белье, огромная лоджия, а также сдаётся вместе с местом в подземном паркинге, для небольшой машины, все охраняемое, видеодомофон, на этаже все закрыто под ещё один домофон, на фото все видно! Залог можно разбить на два месяца!Коммунальные платежи летом около 5000 с паркингом, зимой около 7000! Сдам предпочтительно славянам, не курящим и без животных! Платёжеспособным! Вся инфраструктура в шаговой доступности!!! Агентов просьба не беспокоить!!
Дополнительная информация:
Стиральная машина, Холодильник, Телевизор, Кондиционер, Посудомоечная машина, Интернет. Можно с детьми, Без животных. Евроремонт.
Необходим залог.
60 000 р.
18.02.22 в 07:18
Санкт-Петербург, Выборгский р-н, ул. Композиторов, 18
Сдаётся собственником, без комиссии! Квартира свободна! двухкомнатная и плюс подземный паркинг!!! 78 кВ м, с балконом 88 кВ м, на фото можно увидеть большой балкон!
В квартире есть все: Мебель, посуда, техника, гладильная и сушильная доска, телевизоры, даже в ванной комнате, посудомоечная Машина, две гардеробные,пылесос, постельное белье, огромная лоджия, а также сдаётся вместе с местом в подземном паркинге, для небольшой машины, все охраняемое, видеодомофон, на этаже все закрыто под ещё один домофон, на фото все видно! Залог можно разбить на два месяца!Коммунальные платежи летом около 5000 с паркингом, зимой около 7000! Сдам не курящим и без животных! Платёжеспособным! Вся инфраструктура в шаговой доступности!!! Агентов просьба не беспокоить!!
-----
Примечание: у собственника могут быть дополнительные пожелания к жильцам - обсудите их в чате или по телефону
Дополнительная информация:
Стиральная машина, Холодильник, Телевизор, Кондиционер, Посудомоечная машина. Можно с детьми, Без животных. Евроремонт.
Необходим залог.
В квартире есть все: Мебель, посуда, техника, гладильная и сушильная доска, телевизоры, даже в ванной комнате, посудомоечная Машина, две гардеробные,пылесос, постельное белье, огромная лоджия, а также сдаётся вместе с местом в подземном паркинге, для небольшой машины, все охраняемое, видеодомофон, на этаже все закрыто под ещё один домофон, на фото все видно! Залог можно разбить на два месяца!Коммунальные платежи летом около 5000 с паркингом, зимой около 7000! Сдам не курящим и без животных! Платёжеспособным! Вся инфраструктура в шаговой доступности!!! Агентов просьба не беспокоить!!
-----
Примечание: у собственника могут быть дополнительные пожелания к жильцам - обсудите их в чате или по телефону
Дополнительная информация:
Стиральная машина, Холодильник, Телевизор, Кондиционер, Посудомоечная машина. Можно с детьми, Без животных. Евроремонт.
Необходим залог.
20 000 р.
18.12.20 в 19:12
Санкт-Петербург, Выборгский р-н, улица Композиторов, 18, Шувалово-Озерки
Отличная квартира!Есть вся необходимая бытовая техника и мебель. Хороший ремонт. развитая инфраструктура . Залог можно разбить. Сдаётся по договору найма Предложение для СЛАВЯН Без детей и животных АГЕНТОВ ПРОСЬБА НЕ БЕСПОКОИТЬ!
Необходим залог.
Необходим залог.




























































































































































